Sunday, July 31, 2016

Denah Model Desain Gambar Rumah Minimalis Idaman Modern Tipe 395

rumahseminimalis.com, Rumah merupakan kebutuhan pokok setiap manusia, baik rumah modern ,rumah mewah atau rumah sederhana. Selain, sandang, dan pangan, rumah idaman memiliki nilai yang sangat besar bagi kelangsungan hidup manusia di dunia. Tempat tinggal atau perumahan dengan kualitas yang baik tentunya menjadi hal yang paling diminati oleh setiap manusia karena pentingnya memiliki rumah idaman dengan kualitas yang sangat baik dapat pula menjadikan hidup kita menjadi lebih baik. Oleh sebab itu manusia sering merasa bingung dalam memilih desain rumah minimalis atau rumah modern dan rumah mewah yang merupakan rumah idaman bagi dirinya. Kebingungan tersebut bisa berawal dari desain desain rumah modern atau rumah sederhana yang cocok seperti apa, selain itu harga rumah modern atau rumah sederhana yang sesuai juga menambah pusing pikiran para pembeli rumah.
Definisi rumah idaman setiap orang berbeda-beda. Ada diantara kita yang mendefinisikan rumah idaman sebagai rumah mewah dan besar yang dilengkapi dengan fasilitas-fasilitas mahal dan furnitur yang megah. Namun ada pula yang mendefinisikan rumah idaman sebagai rumah sederhana yang asri, bagian halaman rumah dipenuhi oleh tanaman-tanaman hijau, furniture minimalis, dan sebagainya. Dengan demikian , rumah idaman memiliki kriteria yang berbeda-beda tergantung dari selera penghuninya. Walaupun selera orang tidak sama, ada beberapa hal yang membuat sebuah tempat tinggal bisa disebut sebagai rumah idaman atau rumah minimalis.

Kriteria Rumah Sederhana :
  1. Rumah yang ideal lengkap dengan beberapa interior ruangan yang penting. Seperti ruang tamu, dapur, kamar tidur dan kamar mandi.
  2. Tata letak rumah di desain dengan baik.
  3. Dekorasi ruangan yang serasi.
  4. Kebersihan rumah yang terjaga.
  5. Sirkulasi udara dan pencahayaan yang baik.
  6. Adanya taman rumah.
Jenis Jenis Tipe Rumah :
  1. Rumah Minimalis Tipe 36
  2. Rumah Minimalis Tipe 45
  3. Rumah Minimalis Tipe 54
  4. Rumah Minimalis Tipe 60
  5. Rumah Minimalis Tipe 70
  6. Rumah Minimalis Tipe 80
  7. Rumah Minimalis Tipe 100

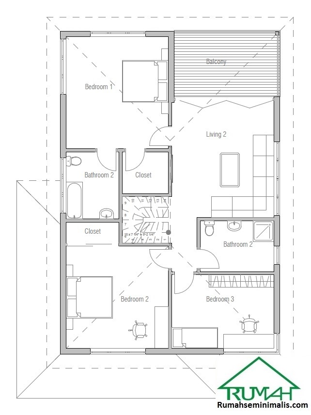
Desain Rumah Minimalis Modern Tipe 395

Saat ini ada berbagai macam desain rumah minimalis yang bisa dipilih untuk menciptakan rumah yang di impikan. Ada tiga macam model rumah yang populer diantaranya, desain rumah minimalis, rumah sederhana dan rumah mewah. Ketiga desain tersebut mempunyai ciri sendiri-sendiri, sehingga Anda dapat memilih desain yang sesuai dengan selera dan kemampuan Anda.
saat ini akan memberikan desain rumah minimalis modern tipe 395.

Denah Model Desain Gambar Rumah Minimalis Idaman Modern Tipe 395
Denah Model Desain Gambar Rumah Minimalis Idaman Modern Tipe 395 1

Denah Model Desain Gambar Rumah Minimalis Idaman Modern Tipe 395
Denah Model Desain Gambar Rumah Minimalis Idaman Modern Tipe 395 2

Denah Model Desain Gambar Rumah Minimalis Idaman Modern Tipe 395
Denah Model Desain Gambar Rumah Minimalis Idaman Modern Tipe 395 3

Denah Model Desain Gambar Rumah Minimalis Idaman Modern Tipe 395
Denah Model Desain Gambar Rumah Minimalis Idaman Modern Tipe 395 4

Denah Model Desain Gambar Rumah Minimalis Idaman Modern Tipe 395
Denah Model Desain Gambar Rumah Minimalis Idaman Modern Tipe 395 5

Denah Model Desain Gambar Rumah Minimalis Idaman Modern Tipe 395
Denah Model Desain Gambar Rumah Minimalis Idaman Modern Tipe 395 6

Denah Model Desain Gambar Rumah Minimalis Idaman Modern Tipe 395
Denah Model Desain Gambar Rumah Minimalis Idaman Modern Tipe 395 7

Denah Model Desain Gambar Rumah Minimalis Idaman Modern Tipe 395
Denah Model Desain Gambar Rumah Minimalis Idaman Modern Tipe 395 8

Semoga Denah Model Desain Gambar Rumah Minimalis Idaman Modern Tipe 395 di atas Bermanfaat.

Denah Model Desain Gambar Rumah Minimalis Idaman Modern Tipe 408

rumahseminimalis.com, Rumah merupakan kebutuhan pokok setiap manusia, baik rumah modern ,rumah mewah atau rumah sederhana. Selain, sandang, dan pangan, rumah idaman memiliki nilai yang sangat besar bagi kelangsungan hidup manusia di dunia. Tempat tinggal atau perumahan dengan kualitas yang baik tentunya menjadi hal yang paling diminati oleh setiap manusia karena pentingnya memiliki rumah idaman dengan kualitas yang sangat baik dapat pula menjadikan hidup kita menjadi lebih baik. Oleh sebab itu manusia sering merasa bingung dalam memilih desain rumah minimalis atau rumah modern dan rumah mewah yang merupakan rumah idaman bagi dirinya. Kebingungan tersebut bisa berawal dari desain desain rumah modern atau rumah sederhana yang cocok seperti apa, selain itu harga rumah modern atau rumah sederhana yang sesuai juga menambah pusing pikiran para pembeli rumah.
Definisi rumah idaman setiap orang berbeda-beda. Ada diantara kita yang mendefinisikan rumah idaman sebagai rumah mewah dan besar yang dilengkapi dengan fasilitas-fasilitas mahal dan furnitur yang megah. Namun ada pula yang mendefinisikan rumah idaman sebagai rumah sederhana yang asri, bagian halaman rumah dipenuhi oleh tanaman-tanaman hijau, furniture minimalis, dan sebagainya. Dengan demikian , rumah idaman memiliki kriteria yang berbeda-beda tergantung dari selera penghuninya. Walaupun selera orang tidak sama, ada beberapa hal yang membuat sebuah tempat tinggal bisa disebut sebagai rumah idaman atau rumah minimalis.

Kriteria Rumah Sederhana :
  1. Rumah yang ideal lengkap dengan beberapa interior ruangan yang penting. Seperti ruang tamu, dapur, kamar tidur dan kamar mandi.
  2. Tata letak rumah di desain dengan baik.
  3. Dekorasi ruangan yang serasi.
  4. Kebersihan rumah yang terjaga.
  5. Sirkulasi udara dan pencahayaan yang baik.
  6. Adanya taman rumah.
Jenis Jenis Tipe Rumah :
  1. Rumah Minimalis Tipe 36
  2. Rumah Minimalis Tipe 45
  3. Rumah Minimalis Tipe 54
  4. Rumah Minimalis Tipe 60
  5. Rumah Minimalis Tipe 70
  6. Rumah Minimalis Tipe 80
  7. Rumah Minimalis Tipe 100

Desain Rumah Minimalis Modern Tipe 408

Saat ini ada berbagai macam desain rumah minimalis yang bisa dipilih untuk menciptakan rumah yang di impikan. Ada tiga macam model rumah yang populer diantaranya, desain rumah minimalis, rumah sederhana dan rumah mewah. Ketiga desain tersebut mempunyai ciri sendiri-sendiri, sehingga Anda dapat memilih desain yang sesuai dengan selera dan kemampuan Anda.
saat ini akan memberikan desain rumah minimalis modern tipe 408.

Denah Model Desain Gambar Rumah Minimalis Idaman Modern Tipe 408
Denah Model Desain Gambar Rumah Minimalis Idaman Modern Tipe 408 1

Denah Model Desain Gambar Rumah Minimalis Idaman Modern Tipe 408
Denah Model Desain Gambar Rumah Minimalis Idaman Modern Tipe 408 2

Denah Model Desain Gambar Rumah Minimalis Idaman Modern Tipe 408
Denah Model Desain Gambar Rumah Minimalis Idaman Modern Tipe 408 3

Denah Model Desain Gambar Rumah Minimalis Idaman Modern Tipe 408
Denah Model Desain Gambar Rumah Minimalis Idaman Modern Tipe 408 4

Denah Model Desain Gambar Rumah Minimalis Idaman Modern Tipe 408
Denah Model Desain Gambar Rumah Minimalis Idaman Modern Tipe 408 5

Denah Model Desain Gambar Rumah Minimalis Idaman Modern Tipe 408
Denah Model Desain Gambar Rumah Minimalis Idaman Modern Tipe 408 6

Denah Model Desain Gambar Rumah Minimalis Idaman Modern Tipe 408
Denah Model Desain Gambar Rumah Minimalis Idaman Modern Tipe 408 7

Semoga Denah Model Desain Gambar Rumah Minimalis Idaman Modern Tipe 408 di atas Bermanfaat.

Denah Rumah Mungil

Rumah adalah salah satu kebutuhan yang harus dipenuhi karena dengan anda memiliki rumah maka ada tempat berteduh dan juga tempat berkumpul bersama keluarga baik dalam keadaan senang maupun sedih. Di dalam rumah ini anda bisa melakukan beragam jenis kegiatan bersama pasangan maupun anggota keluarga tercinta. Namun saat ini harga tanah beserta banguna cukup mahal, akan tetapi anda tidak perlu khawatir jika anda saat ini memiliki rumah dengan lahan terbatas. Dengan merancang denah rumah mungil yang baik dan benar, maka rumah mungil akan nampak luas dan tentunya bisa mencukupi kebutuhan anggota keluarga.

Denah Rumah Mungil

Denah Rumah Mungil

Denah Rumah Mungil

Denah Rumah Mungil

Pada umumnya rumah mungil ini memiliki 1 hingga 2 kamar tidur. Walaupun hanya 1 dan 2 kamar tidur, anda juga bisa menambahkan taman di halaman belakang. Manfaatkanlah dan rancanglah desain interior di dalam rumah mungil anda karena pemilihan interior yang tepat dan sesuai akan memberikan kesan luas pada rumah.

Inspirasi Denah Rumah Mungil


Banyak sekali contoh denah rumah mungil saat ini. Bagi anda yang ingin mencari referensi mengenai denah rumah mungil anda bisa mengunjungi internet maupun mencari referensi melalui buku-buku. Pada umumnya rumah mungil ini sangat bisa dimaksimalkan dengan penataan denah yang tepat dan sesuai. Usahakan anda merancang maupun menggambar denah rumah bersama anggota keluarga karena nantinya anggota keluarga anda yang akan meninggali rumah tersebut. Penempatan posisi kamar tidur, dapur, ruang tamu dan kamar mandi sangatlah penting.

Denah Rumah Mungil Berlantai Kayu

Untuk anda yang sudah merancang denah rumah mungil, sebaiknya anda melengkapi ubin atau alas rumah anda dengan lantai kayu atau parquet. Dengan menggunakan lantai kayu ini rumah mungil anda akan berkesan natural dan tentunya akan sangat berkelas. Dengan menggunakan lantai kayu ini pada malam hari anda akan merasakan hawa yang hangat.

Saturday, July 30, 2016

Denah Model Desain Gambar Rumah Minimalis Idaman Modern Tipe 233

rumahseminimalis.com, Rumah merupakan kebutuhan pokok setiap manusia, baik rumah modern ,rumah mewah atau rumah sederhana. Selain, sandang, dan pangan, rumah idaman memiliki nilai yang sangat besar bagi kelangsungan hidup manusia di dunia. Tempat tinggal atau perumahan dengan kualitas yang baik tentunya menjadi hal yang paling diminati oleh setiap manusia karena pentingnya memiliki rumah idaman dengan kualitas yang sangat baik dapat pula menjadikan hidup kita menjadi lebih baik. Oleh sebab itu manusia sering merasa bingung dalam memilih desain rumah minimalis atau rumah modern dan rumah mewah yang merupakan rumah idaman bagi dirinya. Kebingungan tersebut bisa berawal dari desain desain rumah modern atau rumah sederhana yang cocok seperti apa, selain itu harga rumah modern atau rumah sederhana yang sesuai juga menambah pusing pikiran para pembeli rumah.
Definisi rumah idaman setiap orang berbeda-beda. Ada diantara kita yang mendefinisikan rumah idaman sebagai rumah mewah dan besar yang dilengkapi dengan fasilitas-fasilitas mahal dan furnitur yang megah. Namun ada pula yang mendefinisikan rumah idaman sebagai rumah sederhana yang asri, bagian halaman rumah dipenuhi oleh tanaman-tanaman hijau, furniture minimalis, dan sebagainya. Dengan demikian , rumah idaman memiliki kriteria yang berbeda-beda tergantung dari selera penghuninya. Walaupun selera orang tidak sama, ada beberapa hal yang membuat sebuah tempat tinggal bisa disebut sebagai rumah idaman atau rumah minimalis.

Kriteria Rumah Sederhana :
  1. Rumah yang ideal lengkap dengan beberapa interior ruangan yang penting. Seperti ruang tamu, dapur, kamar tidur dan kamar mandi.
  2. Tata letak rumah di desain dengan baik.
  3. Dekorasi ruangan yang serasi.
  4. Kebersihan rumah yang terjaga.
  5. Sirkulasi udara dan pencahayaan yang baik.
  6. Adanya taman rumah.
Jenis Jenis Tipe Rumah :
  1. Rumah Minimalis Tipe 36
  2. Rumah Minimalis Tipe 45
  3. Rumah Minimalis Tipe 54
  4. Rumah Minimalis Tipe 60
  5. Rumah Minimalis Tipe 70
  6. Rumah Minimalis Tipe 80
  7. Rumah Minimalis Tipe 100

Desain Rumah Minimalis Modern Tipe 233

Saat ini ada berbagai macam desain rumah minimalis yang bisa dipilih untuk menciptakan rumah yang di impikan. Ada tiga macam model rumah yang populer diantaranya, desain rumah minimalis, rumah sederhana dan rumah mewah. Ketiga desain tersebut mempunyai ciri sendiri-sendiri, sehingga Anda dapat memilih desain yang sesuai dengan selera dan kemampuan Anda.
saat ini akan memberikan desain rumah minimalis modern tipe 233.


Denah Model Desain Gambar Rumah Minimalis Idaman Modern Tipe 233
Denah Model Desain Gambar Rumah Minimalis Idaman Modern Tipe 233 1

Denah Model Desain Gambar Rumah Minimalis Idaman Modern Tipe 233
Denah Model Desain Gambar Rumah Minimalis Idaman Modern Tipe 233 2

Denah Model Desain Gambar Rumah Minimalis Idaman Modern Tipe 233
Denah Model Desain Gambar Rumah Minimalis Idaman Modern Tipe 233 3

Denah Model Desain Gambar Rumah Minimalis Idaman Modern Tipe 233
Denah Model Desain Gambar Rumah Minimalis Idaman Modern Tipe 233 4

Denah Model Desain Gambar Rumah Minimalis Idaman Modern Tipe 233
Denah Model Desain Gambar Rumah Minimalis Idaman Modern Tipe 233 5

Denah Model Desain Gambar Rumah Minimalis Idaman Modern Tipe 233
Denah Model Desain Gambar Rumah Minimalis Idaman Modern Tipe 233 6

Denah Model Desain Gambar Rumah Minimalis Idaman Modern Tipe 233
Denah Model Desain Gambar Rumah Minimalis Idaman Modern Tipe 233 7

Denah Model Desain Gambar Rumah Minimalis Idaman Modern Tipe 233
Denah Model Desain Gambar Rumah Minimalis Idaman Modern Tipe 233 8

Denah Model Desain Gambar Rumah Minimalis Idaman Modern Tipe 233
Denah Model Desain Gambar Rumah Minimalis Idaman Modern Tipe 233 9

Denah Model Desain Gambar Rumah Minimalis Idaman Modern Tipe 233
Denah Model Desain Gambar Rumah Minimalis Idaman Modern Tipe 233 10

Semoga Denah Model Desain Gambar Rumah Minimalis Idaman Modern Tipe 233 di atas Bermanfaat.

Denah Model Desain Gambar Rumah Minimalis Idaman Modern Tipe 285

rumahseminimalis.com, Rumah merupakan kebutuhan pokok setiap manusia, baik rumah modern ,rumah mewah atau rumah sederhana. Selain, sandang, dan pangan, rumah idaman memiliki nilai yang sangat besar bagi kelangsungan hidup manusia di dunia. Tempat tinggal atau perumahan dengan kualitas yang baik tentunya menjadi hal yang paling diminati oleh setiap manusia karena pentingnya memiliki rumah idaman dengan kualitas yang sangat baik dapat pula menjadikan hidup kita menjadi lebih baik. Oleh sebab itu manusia sering merasa bingung dalam memilih desain rumah minimalis atau rumah modern dan rumah mewah yang merupakan rumah idaman bagi dirinya. Kebingungan tersebut bisa berawal dari desain desain rumah modern atau rumah sederhana yang cocok seperti apa, selain itu harga rumah modern atau rumah sederhana yang sesuai juga menambah pusing pikiran para pembeli rumah.
Definisi rumah idaman setiap orang berbeda-beda. Ada diantara kita yang mendefinisikan rumah idaman sebagai rumah mewah dan besar yang dilengkapi dengan fasilitas-fasilitas mahal dan furnitur yang megah. Namun ada pula yang mendefinisikan rumah idaman sebagai rumah sederhana yang asri, bagian halaman rumah dipenuhi oleh tanaman-tanaman hijau, furniture minimalis, dan sebagainya. Dengan demikian , rumah idaman memiliki kriteria yang berbeda-beda tergantung dari selera penghuninya. Walaupun selera orang tidak sama, ada beberapa hal yang membuat sebuah tempat tinggal bisa disebut sebagai rumah idaman atau rumah minimalis.

Kriteria Rumah Sederhana :
  1. Rumah yang ideal lengkap dengan beberapa interior ruangan yang penting. Seperti ruang tamu, dapur, kamar tidur dan kamar mandi.
  2. Tata letak rumah di desain dengan baik.
  3. Dekorasi ruangan yang serasi.
  4. Kebersihan rumah yang terjaga.
  5. Sirkulasi udara dan pencahayaan yang baik.
  6. Adanya taman rumah.
Jenis Jenis Tipe Rumah :
  1. Rumah Minimalis Tipe 36
  2. Rumah Minimalis Tipe 45
  3. Rumah Minimalis Tipe 54
  4. Rumah Minimalis Tipe 60
  5. Rumah Minimalis Tipe 70
  6. Rumah Minimalis Tipe 80
  7. Rumah Minimalis Tipe 100

Desain Rumah Minimalis Modern Tipe 285

Saat ini ada berbagai macam desain rumah minimalis yang bisa dipilih untuk menciptakan rumah yang di impikan. Ada tiga macam model rumah yang populer diantaranya, desain rumah minimalis, rumah sederhana dan rumah mewah. Ketiga desain tersebut mempunyai ciri sendiri-sendiri, sehingga Anda dapat memilih desain yang sesuai dengan selera dan kemampuan Anda.
saat ini akan memberikan desain rumah minimalis modern tipe 285.

Denah Model Desain Gambar Rumah Minimalis Idaman Modern Tipe 285
Denah Model Desain Gambar Rumah Minimalis Idaman Modern Tipe 285 1

Denah Model Desain Gambar Rumah Minimalis Idaman Modern Tipe 285
Denah Model Desain Gambar Rumah Minimalis Idaman Modern Tipe 285 2

Denah Model Desain Gambar Rumah Minimalis Idaman Modern Tipe 285
Denah Model Desain Gambar Rumah Minimalis Idaman Modern Tipe 285 3

Denah Model Desain Gambar Rumah Minimalis Idaman Modern Tipe 285
Denah Model Desain Gambar Rumah Minimalis Idaman Modern Tipe 285 4

Denah Model Desain Gambar Rumah Minimalis Idaman Modern Tipe 285
Denah Model Desain Gambar Rumah Minimalis Idaman Modern Tipe 285 5

Denah Model Desain Gambar Rumah Minimalis Idaman Modern Tipe 285
Denah Model Desain Gambar Rumah Minimalis Idaman Modern Tipe 285 6

Denah Model Desain Gambar Rumah Minimalis Idaman Modern Tipe 285
Denah Model Desain Gambar Rumah Minimalis Idaman Modern Tipe 285 7

Denah Model Desain Gambar Rumah Minimalis Idaman Modern Tipe 285
Denah Model Desain Gambar Rumah Minimalis Idaman Modern Tipe 285 8

Denah Model Desain Gambar Rumah Minimalis Idaman Modern Tipe 285
Denah Model Desain Gambar Rumah Minimalis Idaman Modern Tipe 285 9


Semoga Denah Model Desain Gambar Rumah Minimalis Idaman Modern Tipe 285 di atas Bermanfaat.

Denah Model Desain Gambar Rumah Minimalis Idaman Modern Tipe 309

rumahseminimalis.com, Rumah merupakan kebutuhan pokok setiap manusia, baik rumah modern ,rumah mewah atau rumah sederhana. Selain, sandang, dan pangan, rumah idaman memiliki nilai yang sangat besar bagi kelangsungan hidup manusia di dunia. Tempat tinggal atau perumahan dengan kualitas yang baik tentunya menjadi hal yang paling diminati oleh setiap manusia karena pentingnya memiliki rumah idaman dengan kualitas yang sangat baik dapat pula menjadikan hidup kita menjadi lebih baik. Oleh sebab itu manusia sering merasa bingung dalam memilih desain rumah minimalis atau rumah modern dan rumah mewah yang merupakan rumah idaman bagi dirinya. Kebingungan tersebut bisa berawal dari desain desain rumah modern atau rumah sederhana yang cocok seperti apa, selain itu harga rumah modern atau rumah sederhana yang sesuai juga menambah pusing pikiran para pembeli rumah.
Definisi rumah idaman setiap orang berbeda-beda. Ada diantara kita yang mendefinisikan rumah idaman sebagai rumah mewah dan besar yang dilengkapi dengan fasilitas-fasilitas mahal dan furnitur yang megah. Namun ada pula yang mendefinisikan rumah idaman sebagai rumah sederhana yang asri, bagian halaman rumah dipenuhi oleh tanaman-tanaman hijau, furniture minimalis, dan sebagainya. Dengan demikian , rumah idaman memiliki kriteria yang berbeda-beda tergantung dari selera penghuninya. Walaupun selera orang tidak sama, ada beberapa hal yang membuat sebuah tempat tinggal bisa disebut sebagai rumah idaman atau rumah minimalis.

Kriteria Rumah Sederhana :
  1. Rumah yang ideal lengkap dengan beberapa interior ruangan yang penting. Seperti ruang tamu, dapur, kamar tidur dan kamar mandi.
  2. Tata letak rumah di desain dengan baik.
  3. Dekorasi ruangan yang serasi.
  4. Kebersihan rumah yang terjaga.
  5. Sirkulasi udara dan pencahayaan yang baik.
  6. Adanya taman rumah.
Jenis Jenis Tipe Rumah :
  1. Rumah Minimalis Tipe 36
  2. Rumah Minimalis Tipe 45
  3. Rumah Minimalis Tipe 54
  4. Rumah Minimalis Tipe 60
  5. Rumah Minimalis Tipe 70
  6. Rumah Minimalis Tipe 80
  7. Rumah Minimalis Tipe 100

Desain Rumah Minimalis Modern Tipe 309

Saat ini ada berbagai macam desain rumah minimalis yang bisa dipilih untuk menciptakan rumah yang di impikan. Ada tiga macam model rumah yang populer diantaranya, desain rumah minimalis, rumah sederhana dan rumah mewah. Ketiga desain tersebut mempunyai ciri sendiri-sendiri, sehingga Anda dapat memilih desain yang sesuai dengan selera dan kemampuan Anda.
saat ini akan memberikan desain rumah minimalis modern tipe 309.

Denah Model Desain Gambar Rumah Minimalis Idaman Modern Tipe 309
Denah Model Desain Gambar Rumah Minimalis Idaman Modern Tipe 309 1

Denah Model Desain Gambar Rumah Minimalis Idaman Modern Tipe 309
Denah Model Desain Gambar Rumah Minimalis Idaman Modern Tipe 309 2

Denah Model Desain Gambar Rumah Minimalis Idaman Modern Tipe 309
Denah Model Desain Gambar Rumah Minimalis Idaman Modern Tipe 309 3

Denah Model Desain Gambar Rumah Minimalis Idaman Modern Tipe 309
Denah Model Desain Gambar Rumah Minimalis Idaman Modern Tipe 309 4

Denah Model Desain Gambar Rumah Minimalis Idaman Modern Tipe 309
Denah Model Desain Gambar Rumah Minimalis Idaman Modern Tipe 309 5

Denah Model Desain Gambar Rumah Minimalis Idaman Modern Tipe 309
Denah Model Desain Gambar Rumah Minimalis Idaman Modern Tipe 309 6

Denah Model Desain Gambar Rumah Minimalis Idaman Modern Tipe 309
Denah Model Desain Gambar Rumah Minimalis Idaman Modern Tipe 309 7

Denah Model Desain Gambar Rumah Minimalis Idaman Modern Tipe 309
Denah Model Desain Gambar Rumah Minimalis Idaman Modern Tipe 309 8

Denah Model Desain Gambar Rumah Minimalis Idaman Modern Tipe 309
Denah Model Desain Gambar Rumah Minimalis Idaman Modern Tipe 309 9

Denah Model Desain Gambar Rumah Minimalis Idaman Modern Tipe 309
Denah Model Desain Gambar Rumah Minimalis Idaman Modern Tipe 309 10


Semoga Denah Model Desain Gambar Rumah Minimalis Idaman Modern Tipe 309 di atas Bermanfaat.

Model Desain Gambar Rumah Minimalis Idaman Modern Tipe 178

rumahseminimalis.com, Rumah merupakan kebutuhan pokok setiap manusia, baik rumah modern ,rumah mewah atau rumah sederhana. Selain, sandang, dan pangan, rumah idaman memiliki nilai yang sangat besar bagi kelangsungan hidup manusia di dunia. Tempat tinggal atau perumahan dengan kualitas yang baik tentunya menjadi hal yang paling diminati oleh setiap manusia karena pentingnya memiliki rumah idaman dengan kualitas yang sangat baik dapat pula menjadikan hidup kita menjadi lebih baik. Oleh sebab itu manusia sering merasa bingung dalam memilih desain rumah minimalis atau rumah modern dan rumah mewah yang merupakan rumah idaman bagi dirinya. Kebingungan tersebut bisa berawal dari desain desain rumah modern atau rumah sederhana yang cocok seperti apa, selain itu harga rumah modern atau rumah sederhana yang sesuai juga menambah pusing pikiran para pembeli rumah.
Definisi rumah idaman setiap orang berbeda-beda. Ada diantara kita yang mendefinisikan rumah idaman sebagai rumah mewah dan besar yang dilengkapi dengan fasilitas-fasilitas mahal dan furnitur yang megah. Namun ada pula yang mendefinisikan rumah idaman sebagai rumah sederhana yang asri, bagian halaman rumah dipenuhi oleh tanaman-tanaman hijau, furniture minimalis, dan sebagainya. Dengan demikian , rumah idaman memiliki kriteria yang berbeda-beda tergantung dari selera penghuninya. Walaupun selera orang tidak sama, ada beberapa hal yang membuat sebuah tempat tinggal bisa disebut sebagai rumah idaman atau rumah minimalis.

Kriteria Rumah Sederhana :
  1. Rumah yang ideal lengkap dengan beberapa interior ruangan yang penting. Seperti ruang tamu, dapur, kamar tidur dan kamar mandi.
  2. Tata letak rumah di desain dengan baik.
  3. Dekorasi ruangan yang serasi.
  4. Kebersihan rumah yang terjaga.
  5. Sirkulasi udara dan pencahayaan yang baik.
  6. Adanya taman rumah.
Jenis Jenis Tipe Rumah :
  1. Rumah Minimalis Tipe 36
  2. Rumah Minimalis Tipe 45
  3. Rumah Minimalis Tipe 54
  4. Rumah Minimalis Tipe 60
  5. Rumah Minimalis Tipe 70
  6. Rumah Minimalis Tipe 80
  7. Rumah Minimalis Tipe 100

Desain Rumah Minimalis Modern Tipe 178

Saat ini ada berbagai macam desain rumah minimalis yang bisa dipilih untuk menciptakan rumah yang di impikan. Ada tiga macam model rumah yang populer diantaranya, desain rumah minimalis, rumah sederhana dan rumah mewah. Ketiga desain tersebut mempunyai ciri sendiri-sendiri, sehingga Anda dapat memilih desain yang sesuai dengan selera dan kemampuan Anda.
saat ini akan memberikan desain rumah minimalis modern tipe 178.

Model Desain Gambar Rumah Minimalis Idaman Modern Tipe 178
Model Desain Gambar Rumah Minimalis Idaman Modern Tipe 178 1

Model Desain Gambar Rumah Minimalis Idaman Modern Tipe 178
Model Desain Gambar Rumah Minimalis Idaman Modern Tipe 178 2

Model Desain Gambar Rumah Minimalis Idaman Modern Tipe 178
Model Desain Gambar Rumah Minimalis Idaman Modern Tipe 178 3

Model Desain Gambar Rumah Minimalis Idaman Modern Tipe 178
Model Desain Gambar Rumah Minimalis Idaman Modern Tipe 178 4

Model Desain Gambar Rumah Minimalis Idaman Modern Tipe 178
Model Desain Gambar Rumah Minimalis Idaman Modern Tipe 178 5

Model Desain Gambar Rumah Minimalis Idaman Modern Tipe 178
Model Desain Gambar Rumah Minimalis Idaman Modern Tipe 178 6

Model Desain Gambar Rumah Minimalis Idaman Modern Tipe 178
Model Desain Gambar Rumah Minimalis Idaman Modern Tipe 178 7

Model Desain Gambar Rumah Minimalis Idaman Modern Tipe 178
Model Desain Gambar Rumah Minimalis Idaman Modern Tipe 178 8

Model Desain Gambar Rumah Minimalis Idaman Modern Tipe 178
Model Desain Gambar Rumah Minimalis Idaman Modern Tipe 178 9

Semoga Denah Model Desain Gambar Rumah Minimalis Idaman Modern Tipe 178 di atas Bermanfaat.