Denah rumah minimalis 1 lantai 3 kamar tidur dan garasi mobil - Merancang denah adalah tahap awal dari pembangunan rumah, denah ini dijadikan acauan dan patokan ketika pembangunan rumah, ibarat orang mau berjalan sudah ada rute dan tujuan sehingga selamat dan sampai tujuan. Begitu juga rumah saat membangun rumah dengan memiliki denah maka pembangunan rumah akan berjalan sesuai dengan yang direncanakan.
Denah merupakan seuatu yang mengambarkan tata letak, jadi untuk denah rumah dapat diartikan sebagai suatu gambaran tata letak ruangan rumah yang dilengkapi dengan ukurannya. Tujuan pembuatan pembuatan denah rumah ini adalah untuk memudahkan dalam pembangunan rumah dan sebagai acuan pembangunan rumah.
Pada kesempatan kali ini kami akan membagikan denah rumah minimalis 1 lantai 3 kamar tidur yang dilengkapi dengan garasi, yang mana denah jenis ini merupakan denah yang ideal untuk mengakomodir kebutuhan keluarga Anda. Denah yang akan kami bagikan dilengkapi dengan ukurannya sehingga bisa langsung Anda terapkan pada pembangunan rumah Anda.
Denah merupakan seuatu yang mengambarkan tata letak, jadi untuk denah rumah dapat diartikan sebagai suatu gambaran tata letak ruangan rumah yang dilengkapi dengan ukurannya. Tujuan pembuatan pembuatan denah rumah ini adalah untuk memudahkan dalam pembangunan rumah dan sebagai acuan pembangunan rumah.
Pada kesempatan kali ini kami akan membagikan denah rumah minimalis 1 lantai 3 kamar tidur yang dilengkapi dengan garasi, yang mana denah jenis ini merupakan denah yang ideal untuk mengakomodir kebutuhan keluarga Anda. Denah yang akan kami bagikan dilengkapi dengan ukurannya sehingga bisa langsung Anda terapkan pada pembangunan rumah Anda.
GambarDenah rumah minimalis 1 lantai 3 kamar tidur + garasi mobil
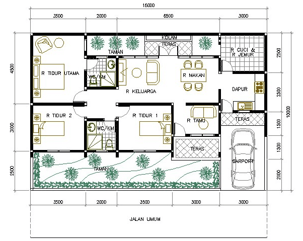
Rumah yang akan dibangun harus dirancang dahulu denahnya sehingga rumah yang dibangun ini mempunyai arah yang jelas. Ada banyak denah yang bisa digunakan, denah ini harus memperhatikan ketersedian lahan yang ada. Berikut ini adalah beberapa gambar denah rumah minimalis 1 lantai 3 kamar tidur dan garasi mobil :
![]() |
| Denah rumah minimalis 1 lantai 3 kamar tidur dan garasi |
![]() |
| Denah rumah minimalis 1 lantai 3 kamar tidur dan garasi |
![]() |
| Denah rumah minimalis 1 lantai 3 kamar tidur dan garasi |
![]() |
| Denah rumah minimalis 1 lantai 3 kamar tidur dan garasi |
![]() |
| Denah rumah minimalis 1 lantai 3 kamar tidur dan garasi |
![]() |
| Denah rumah minimalis 1 lantai 3 kamar tidur dan garasi |
![]() |
| Denah rumah minimalis 1 lantai 3 kamar tidur dan garasi |
![]() |
| Denah rumah minimalis 1 lantai 3 kamar tidur dan garasi |
![]() |
| Denah rumah minimalis 1 lantai 3 kamar tidur dan garasi |
![]() |
| Denah rumah minimalis 1 lantai 3 kamar tidur dan garasi |
![]() |
| Denah rumah minimalis 1 lantai 3 kamar tidur dan garasi |
![]() |
| Denah rumah minimalis 1 lantai 3 kamar tidur dan garasi |
![]() |
| Denah rumah minimalis 1 lantai 3 kamar tidur dan garasi |
![]() |
| Denah rumah minimalis 1 lantai 3 kamar tidur dan garasi |
![]() |
| Denah rumah minimalis 1 lantai 3 kamar tidur dan garasi |
![]() |
| Denah rumah minimalis 1 lantai 3 kamar tidur dan garasi |
![]() |
| Denah rumah minimalis 1 lantai 3 kamar tidur dan garasi |
![]() |
| Denah rumah minimalis 1 lantai 3 kamar tidur dan garasi |
![]() |
| Denah rumah minimalis 1 lantai 3 kamar tidur dan garasi |
![]() |
| Denah rumah minimalis 1 lantai 3 kamar tidur dan garasi |
Denah rumah minimalis 1 lantai 3 kamar tidur dan garasi mobil di atas bisa Anda rubah seuai dengan keinginan Anda namu harus memahami ukuran yang pas dalam perubahan tersebut. Sekiranya kurang paham dalam masalah denah berkonsultasilah kepada arsitektur rumah untuk membantu Anda dalam membuat denah atau merubah denah.
Artikel Terkait :
- 65 desain rumah minimalis modern 1 lantai terindah dan terbaru untuk keluarga
- 40 Contoh Denah Rumah Minimalis Type 36 Berbagai Model
- 54 Desain Rumah Sederhana di Kampung Yang Terlihat Cantik dan Mewah
- 72 Gambar Desain Dapur Rumah Minimalis Modern Cantik dan Terbaru
Demikianlah pembahasan mengenai denah rumah yang bisa saya ulas pada kesempatan ini semoga bisa membantu Anda dalam membuat denah rumah minimalis 1 lantai 3 kamar tidur dan garasi.




















No comments:
Post a Comment